Βιοκλιματική Αναβάθμιση και Βιώσιμη κινητικότητα δικτύου οδών ΠΕ 14-15 (Κηφισιάς – Βότση)
Επιχειρησιακό Πρόγραμμα Περιφέρειας Κεντρικής Μακεδονίας 2021-2027
Τίτλος Πράξης:
«Βιοκλιματική Αναβάθμιση και Βιώσιμη κινητικότητα δικτύου οδών ΠΕ 14-15 (Κηφισιάς – Βότση)» με κωδ. ΟΠΣ 6004747 Ε.Π. «ΚΕΝΤΡΙΚΗ ΜΑΚΕΔΟΝΙΑ 2021-2027», συνολικής δημόσιας δαπάνης 10.309.471,22€.
Συνοπτική περιγραφή:
Η πράξη υποβλήθηκε στο Επιχειρησιακό Πρόγραμμα «Κεντρική Μακεδονία 2021-2027», στον Άξονα Προτεραιότητας «Ολοκληρωμένη Χωρική Ανάπτυξη στην Κεντρική Μακεδονία», βάσει της Πρόσκλησης 5535 «Αστικές αναπλάσεις ανοικτών δημόσιων χώρων και αξιοποίηση ανενεργών υποδομών και κτιρίων προς όφελος της βιώσιμης και συμπεριληπτικής ανάπτυξης» και εγκρίθηκε με την αρ. πρωτ. 6174/18.12.2023 (ΑΔΑ: Ψ17ΛΛ-ΗΒΟ) Απόφαση Ένταξης.
Η πράξη μεταφέρθηκε στο Επιχειρησιακό Πρόγραμμα «Κεντρική Μακεδονία 2021-2027», και εκδόθηκε η υπ’ αριθμ. πρωτ. 6275/21-12-2023 (ΑΔΑ: ΨΛΑ57ΛΛ-ΒΝ9) Απόφαση Ένταξης.
Το έργο χρηματοδοτείται από το Ευρωπαϊκό Ταμείο Περιφερειακής Ανάπτυξης (ΕΤΠΑ), μέσω του Ε.Π. Κεντρική Μακεδονία 2021-2027 και από το Πρόγραμμα Δημοσίων Επενδύσεων με ΣΑΕ ΕΠ0087 (κωδικός ενάριθμου: 2023ΕΠ00870184).
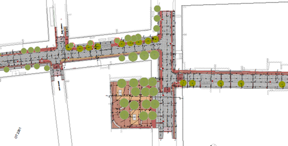
Η πράξη αφορά στην βιοκλιματική αναβάθμιση και την βιώσιμη κινητικότητα του δικτύου οδών και των κοινοχρήστων χώρων, των πολεοδομικών ενοτήτων 14 και 15 (Κηφισιάς και Βότση) του Δήμου Καλαμαριάς. Το συνολικό μήκος του δικτύου των οδών είναι 5.850 μ. και οι επιφάνειες προς διαμόρφωση 27.000 m2 περίπου.
Το δίκτυο των οδών και οι κοινόχρηστοι – κοινωφελείς χώροι που αποτελούν αντικείμενο των επεμβάσεων είναι:
Π.Ε.14-Κηφισιά:
Οδοί: Ιπποκράτους, Ιουστινιανού, τμήμα της Παπαντωνίου, τμήμα της Σωκράτους, και η οδός Διός.
Κοινόχρηστοι χώροι: Ο.Τ.:2-261 (τμήμα)_πράσινο, επί της οδού Σωκράτους.
Επέκταση Κηφισιάς: Δίκτυο πεζοδρόμων αποτελούμενο από τις οδούς, Χριστοδουλίδη, Κολάρου, Βοζίκη, περιμετρική Ο.Τ.:2-473, Μαβίδη, Πανοπούλου και Ο.Τ.:2-473 (τμήμα)_πράσινο.
Π.Ε.15-Βότση:
Οδοί: Ερυθρού Σταυρού, τμήμα της Ζηργάνου, τμήμα της Καισαρείας, Ικονίου, Ιεροσολύμων, Μ. Αλεξάνδρου, Λασσάνη.
Κοινόχρηστοι χώροι: Ο.Τ.:2-467 και ο όμορος πεζόδρομος, Ο.Τ.:2-460 πράσινο (ως προς τον αστικό εξοπλισμό),
Ο.Τ.:2-473 (τμήμα) πράσινο στην επέκταση Κηφισιάς, συμβολή των οδών Ζηργάνου, Καραβαγγέλη, Ιωνίας, συμβολή των οδών Ζηργάνου, Λαοδικίας, Καισαρείας, Αλκυόνος.
Οδός Περικλέους:
Είναι το όριο των δυο Π.Ε. και η μελετητική δραστηριότητα αφορά στο τμήμα από Ζηργάνου έως Ε. Αντίστασης, καθώς και τους κοινόχρηστους χώρους:Ο.Τ.:2-096 (τμήμα) – πάρκο, τη συμβολή των οδών Περικλέους, Ιεροσολύμων, Έκτορος και τη συμβολή των οδών Περικλέους, Ζηργάνου, Καππαδοκίας (τριγωνική νησίδα).
Η πράξη μέσω των παρεμβάσεων βιοκλιματικής αναβάθμισης και βιώσιμης κινητικότητας συγκροτεί ένα δίκτυο κοινόχρηστων και κοινωφελών χώρων θέτοντας σε προτεραιότητα την κίνηση πρωτεύοντος των πεζών και έπειτα των ποδηλάτων. Ταυτόχρονα ο σχεδιασμός των παρεμβάσεων θα υλοποιηθεί με κριτήριο την άνεση, που είναι μια εξειδικευμένη μορφή αστικού σχεδιασμού που στοχεύει στην επίτευξη καλύτερων θερμικών, οπτικών και ακουστικών συνθηκών στο περιβάλλον της σύγχρονης πόλης εστιάζοντας στις φυσικές ιδιότητες της μικρο – κλίμακας των χώρων αυτών. Ο σχεδιασμός των παρεμβάσεων εμβαθύνει στην συσχέτιση των κοινωνικών εμπειριών στη σύγχρονη αστική ζωή με τις φυσικές ιδιότητες που χαρακτηρίζουν έναν αστικό ανοιχτό χώρο.
Προβλεπόμενες εργασίες: (α) καθαιρέσεις – αποξηλώσεις υφιστάμενων κατασκευών, (β) χωματουργικά, (γ) Θεμελιώσεις, (δ) Κατασκευές από σκυρόδεμα, (ε) Ξυλότυποι, (ζ) Δαπεδοστρώσεις: (1) Έγχρωμο Γαρμπιλομωσαικό (ζώνες εγκυβωτισμού / μικρές επιφάνειες-χυτό δάπεδο/ζώνες προσαρμογών) (2) Έγχρωμο πορώδες υδατοπερατό σκυρόδεμα, (3) Τσιμεντοκυβόλιθοι (οδοποιίας) χρώματος γκρί με ψυχρά υλικά, (4) Οδόστρωση με φυσικούς κυβόλιθους (5) Δαπεδόστρωση Ποδηλατόδρομου (Έγχρωμη ασφαλτική στρώση βάσης) (6) Επιστρώσεις προαναμεμιγμένης κονίας για σκλήρυνση επιφανειών με χαλαζιακά αδρανή και ειδικές προσμίξεις πάχους 3,0 cm για διαμορφώσεις κεκλιμένων επιφανειών (ράμπες), (7) Στρώση σταθεροποιημένου χώματος πάχους 60mm (8) Δάπεδο χαλαζιακής άμμου πάχους 7 cm (9) Οδόστρωμα, (η) φωτισμός, (θ) καθιστικά, (ι) συντριβάνια/πίδακες, (κ) κάλαθοι απορριμμάτων, (λ) κρήνες, (μ) φύτευση κ.λ.π.
Η παρούσα πρόταση συμβάλλει στην διευθέτηση του αστικού ιστού και στην απόδοση στην πόλη ενός συνόλου από μικρούς δημόσιους χώρους με την πεποίθηση ότι αυτό που ορίζει τον χαρακτήρα της πόλης είναι ο δημόσιος χώρος και όχι οι ιδιωτικοί της χώροι. Τα κοινά περιουσιακά στοιχεία της πόλης οι δημόσιοι χώροι της συγκροτούν το μεγάλο πλεονέκτημα της πόλης και την βοηθούν να αναβαθμίσει την κοινωνική ζωή της πόλης και εν τέλει να προκαλέσει την οικονομική ανάπτυξη.
Κεντρικό εργαλείο του αστικού σχεδιασμού για την εφαρμογή της βιώσιμης κινητικότητας είναι ο έλεγχος της ταχύτητας των αυτοκινήτων όχι μόνο ως διοικητικό μέτρο αλλά ενσωματώνοντας στον σχεδιασμό την γεωμετρική διευθέτηση της όδευσης των αυτοκινήτων, μείωση του πλάτους στο απόλυτα απαιτούμενο και αλλαγή του οδοστρώματος στις διαβάσεις των πεζών ώστε να επιτευχθεί ο έλεγχος της ταχύτητας. Ο έλεγχος της ταχύτητας και η καθιέρωση ζωνών ήπιας κυκλοφορίας στο αστικό οδικό δίκτυο αποδεδειγμένα τις τελευταίες δεκαετίες έχει οδηγήσει σε μείωση των ατυχημάτων και επιπλέον δίνει την δυνατότητα στις πόλεις να συγκροτήσουν δημόσιους χώρους ενισχύοντας τους κοινωνικούς δεσμούς των πολιτών.
Οι νέοι χώροι πρασίνου, το δίκτυο των οδών και η πράσινη διαδρομή που υλοποιείται αποτελούν τμήμα του ενιαίου δικτύου ανοικτών χώρων του Δήμου, των οποίων προβλέπεται η ανασύνθεση και δικτύωσή τους σύμφωνα με τη Στρατηγική Μελέτη Περιβαλλοντικών Επιπτώσεων της Αναθεώρησης του Γενικού Πολεοδομικού Σχεδίου του Δήμου Καλαμαριάς.
Επιστροφή




